行车式刮泥机作为一种结构相对简洁、实用性强的污泥机械收集设备,在矩形沉淀池的稳定运行中扮演着重要角色。其通过可靠的往复式机械运动,有效解决了自来水厂矩形池底污泥的连续收集问题,有助于维持沉淀池的设计处理能力。
一、设备概述与工作原理
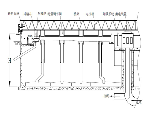
行车式刮泥机是广泛应用于矩形沉淀池的污泥收集设备,其主要功能是连续、自动地刮除并收集沉积于池底的污泥,确保沉淀池的有效容积和处理效率。该设备安装于池顶两侧的轨道上,通过驱动装置带动整机沿池长方向往复行走,带动水下刮泥板完成池底污泥的刮集作业。
其工作原理基于机械化往复运动:驱动装置提供动力,使整个桁架结构沿轨道平稳行走;安装在桁架底部的刮泥板在行进过程中,与池底保持设定的接触角度,将沉降的污泥逐步刮送至沉淀池末端的集泥槽;到达行程终点后,刮泥板通过提升或翻转机构脱离池底,设备快速返回起始位置,进入下一个工作循环。部分型号还配备撇渣装置,可同步清除水面浮渣。

二、主要结构组成
行车式刮泥机通常由以下几个核心部分组成,各部分协同工作以实现稳定可靠的运行:
1、驱动与行走装置:包括电机、减速机及行走轮组。该部分提供设备行走的动力,确保其沿轨道平稳、精确地往复运行。
2、主梁与桁架结构:作为设备的承重与连接框架,横跨沉淀池宽度。需具备足够的结构强度和刚度,以承载自身重量、刮泥阻力及可能的雪荷载、风荷载。
3、刮泥系统:由刮泥板、支撑臂及提升机构组成。刮泥板材质需耐磨耐腐蚀,其设计形状与安装角度直接影响刮泥效率。提升机构可使刮泥板在返程时脱离池底,减少阻力与污泥扰动。
4、轨道与供电系统:池顶铺设的钢轨为设备提供行走路径,要求安装平直、牢固。供电通常采用安全滑触线或电缆卷筒方式,为移动设备提供持续电力。
5、电气控制系统:控制设备自动往复运行,具备限位保护、过载保护及远程控制接口。可实现定时运行、与排泥阀联动等自动化功能。
三、设备核心特点
行车式刮泥机的设计充分考虑了矩形沉淀池的工况需求,形成了一系列实用特点:
1、适应矩形池体:专为矩形平流式沉淀池设计,结构形式与池型匹配度高,能有效覆盖整个池底宽度,无刮泥死角。
2、运行方式灵活:可工作于连续或间歇运行模式,根据实际污泥产量灵活调整运行周期与刮泥频率,有助于节能。
3、维护相对便捷:主要机械与电气部件位于池面以上,便于日常检查、维护和保养,降低了水下作业需求。
4、对土建要求明确:对池顶轨道安装的平整度、池底纵向坡度有相应要求,标准化设计有助于简化土建配合工作。
5、可选功能多样:可根据需要,增配撇渣板、浮渣刮板等附件,实现浮渣与污泥同步清除。
6、材料选择性强:与水、污泥接触的部件可针对水质腐蚀性,选用碳钢防腐、不锈钢等不同材质,以延长设备使用寿命。

四、典型应用领域
行车式刮泥机,适用于多种需要进行固液分离和污泥收集的矩形池场景,主要包括:
1、市政污水处理:用于城镇污水处理厂的初沉池、二沉池,收集并排除沉淀的污泥。
2、工业废水处理:广泛用于造纸、印染、食品加工、化工等行业废水处理站的沉淀池。
3、给水处理工程:在自来水厂的平流沉淀池中,用于排除沉积的矾花和泥沙。
五、选型与工程考量要点
在项目中选择行车式刮泥机时,建议系统性地评估以下因素,以确保设备适配且运行可靠:
1、池体参数是基础:精确测量沉淀池的有效长度、宽度、水深及池底纵向坡度。这些是确定设备跨度、行走行程、刮泥板尺寸和驱动功率的根本依据。
2、污泥特性需明确:了解污泥的沉降速度、固体浓度、粘稠度及腐蚀性。这影响刮泥阻力的计算、电机功率的选择以及设备材质的确定。
六、设备规格参数化:
1、跨度与轮距:根据池宽和轨道安装位置确定。
2、行走速度:工作刮泥速度通常较慢(约0.6-1.2 m/min),返程速度较快。
3、驱动功率:依据跨度、刮泥阻力、轨道摩擦等综合计算。
4、控制方式:明确所需的自动化程度,如本地控制、远程PLC控制、时间控制或与泥位计联动等。
5、材质与防腐方案:根据废水水质(pH值、含盐量、腐蚀性离子等),明确水下部件、水面以上部件及紧固件的材质要求与防腐处理工艺(如热浸镀锌、喷砂除锈后涂覆重防腐涂料等)。
6、安装条件与接口:确认池顶轨道基础的承载能力、平整度要求、电源接入点位置以及控制信号接口形式,确保设备能顺利安装并入系统。
7、供应商的技术保障:考察供应商的工程设计能力、过往同类项目经验、质量控制标准以及所能提供的安装指导、调试支持和售后服务体系。

更多关于行车式刮泥机的相关资料,可关注公司网站(www.mzjrx.cn)!

客服1